3595 Floral Dr SE, Largo, 33771
Toggle Navigation
Images
Floor Plans
Map
3595 Floral Dr SE
Largo, 33771
Scroll to Content
Images
Slideshow
Photo Grid
Hide
Previous
Next
Show more
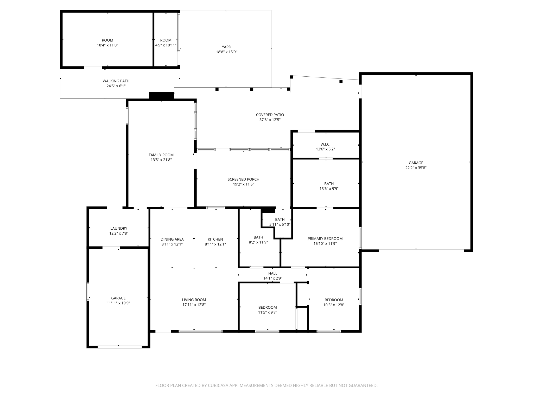
Floor Plans
Slideshow
Photo Grid
Hide
Previous
Next